永利yl23411集团官网入口
全国服务热线
021-64162222
网站首页
走进永利yl23411集团官网入口
产品展示
新闻资讯
阀门知识
人才招聘
服务中心
联系我们
公司介绍
总裁致辞
企业文化
厂区风貌
组织机构
荣誉证书
阀门欣赏
闸阀
蝶阀
球阀
截止阀
调节阀
隔膜阀
电磁阀
止回阀
切断阀
阀门配件
电动执行器
阀门控制箱
水力控制阀
企业动态
行业动态
闸阀知识
蝶阀知识
球阀知识
截止阀知识
调节阀知识
执行器知识
电磁阀知识
控制箱知识
止回阀知识
隔膜阀知识
安全阀知识
水力控制阀知识
人才招聘
客户案例
客户留言
销售网络
服务承诺
订货流程
保养常识
联系方式
交通地图
开票信息
网站首页
走进永利yl23411集团官网入口
产品展示
新闻资讯
阀门知识
人才招聘
服务中心
联系我们
产品展示
Products show
电动球阀
防爆球阀
保温球阀
四通球阀
三通球阀
调节球阀
高温球阀
低压球阀
浮动球阀
固定球阀
衬氟球阀
法兰球阀
高压球阀
内螺纹球阀
防爆球阀
阀门首页
>
产品展示
>
球阀
>
防爆球阀
>
产品名称:矿用本安型防爆电动球阀
[ 2019-10-15 ]
订购热线:
021-64162222
订购传真:
021-62677999
质量稳定:
实行全过程质量监控,细致入微全方位检测!
价格合理:
高效内部成本控制,减少了开支,让利于客户
交货快捷:
先进生产流水线,充足的备货,缩短了交货期!
产品介绍
规格尺寸
结构图片
一、
矿用本安型防爆电动球阀
介绍
矿用本安型防爆电动球阀
由防爆电动执行机构和O型切断球阀组成种球体绕垂直通首轴旋转90度的阀门,适用于高性能自动化控制两位切断、调节的场合。输入4-20mA信号及220VAC电源即可控制运转。防爆等级BT4,质量稳定,防爆性能好,可用于防爆场合,煤矿地面及非采掘工作面,专业级MA煤安产品。该产品广泛用于易燃易爆等场所,如沼气、煤气、煤矿等等。
二、
矿用本安型防爆电动球阀
功能特点
1、具有限位保护功能,防止电机过负荷,球阀开启或关闭时间短,在4S左右即可完成动作,并且开启或关闭后,电动球阀电机处于断电待机状态,增加了其使用寿命工作,工作更加稳定可靠。
2、阀门机构与阀体连杆上端增加了油封,下端增加了“O”形橡胶密封圈及两个排水孔,确保电动球阀控制线路腔体内无任何进水现象,从而保证即使在阀门水平放置时也能正常工作,同时控制线路腔体有传统的圆柱形更改为长方体,占用空间小,方便在狭小空间内安装。
3、电动球阀外壳增加手动旋转开关,在停电或需测试水源水压、特殊喷雾要求时,可人工关闭或打开水路,方便使用。
4、电动球阀的阀体所用球体面积大,增加了密封面积,保证不会漏水。球体采用不锈钢制作,抗腐蚀能力增强,不易因锈蚀而损坏。
三、
矿用本安型防爆电动球阀
技术参数
1、工作电压: 12-24VDC;
2、 工作电流: ≤50mA;
3、 水压适应范围:0.2MPa~7.0MPa;
4、 供水温度范围:0℃~+60℃;
5、电动球阀打开时间小于4s,关闭时间小于4s;
6、球阀通径:15mm;
7、 防爆型式:矿用本质安全型;
8、防爆标志:ExibI。
四、
矿用本安型防爆电动球阀
选型指南
1、电动球阀的工作电压的要求;
2、进水口径的大小;
3、控制信号的输入是高电平还是低电平。
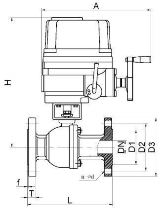
五、
矿用本安型防爆电动球阀
主要尺寸
六、
矿用本安型防爆电动球阀
结构图
上一篇:
防爆电动法兰衬氟球阀
/ 下一篇:
bq941f防爆电动球阀
阀门资讯
电动闸阀中英合资的品牌生产厂家
配水闸阀厂家,矿用配水闸阀生产厂家
电动执行器厂家有哪些?为什么选择上海
电动截止阀厂商,上海电动截止阀品牌厂家
阀门知识
整体式电动阀门装置的调试方法
电动温度调节阀相关介绍_电动温度调节阀
电动真空球阀故障及解决办法
阀门电动装置控制箱电气原理图内部检查
阀门产品
电动软密封球阀
防爆电动球阀
矿用电动闸阀
智能调节型电动执行器
Z962Y高压电动闸阀
对夹式电动软密封蝶阀
dn100电动闸阀
电动刀型闸阀dn150
电动高压闸阀Z961Y
电动法兰闸阀dn300pn25